Projekt Unterföhring Münchner Str. 6
Unser neues Projekt mit 10 Wohneinheiten entsteht in der Münchner Straße 6 in Unterföhring.
Lageplan

Freiflächenplan
Ansicht des Gebäudes von Norden

Ansicht des Gebäudes von Westen

Ansicht des Gebüdes von Süden

Ansicht des Gebäudes von Osten

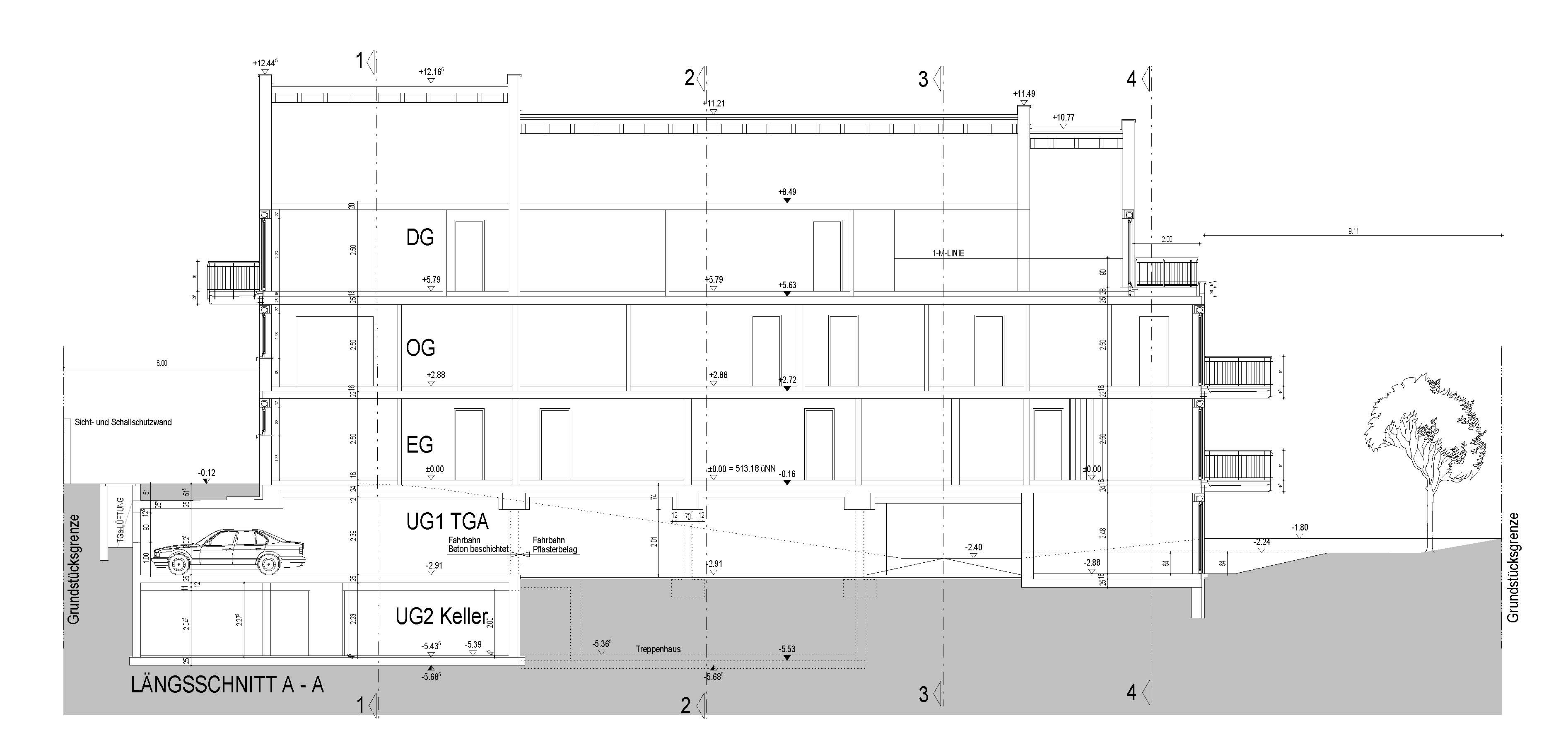
Gebäudeschnitte





