Projekt Occamstr. 14
Unser neues Projekt mit 11 Wohneinheiten entsteht in der Occamstraße 14 in München.

Objektbeschreibung
- Innovatives Neubauprojekt in bester Lager
- 11 Wohneinheiten verteilt auf 5 Etagen
- Wohnkultur auf höchstem Niveau
- Puristisch, moderne Architektur
- Terasse oder Balkon S/O mit Weitblick
- Grundriss auf Wunsch
- Hochwertige Materialien
- Herrlicher Ausblick
- Tiefgaragenstellplatz
- Ideale Infrastruktur in schönster Lage Schwabings
- Nahe Englischer Garten
Lage
Altschwabing - mitten im Herzen der Stadt München, der mit unter begehrteste Stadtteil. Geprägt wird Schwabing durch seine prächtigen und imposanten Altbaufassaden, die unmittelbare Nähe zum Englischen Garten, der Isar und seinem unverwechselbaren Charme. Beste Lebensqualität in einer vielfältigen Umgebung. Bunt, lebendig und chic, aber auch gediegen und ruhig - das ist Schwabing. Das Flair des Künstlerviertels gefällt und verzaubert zugleich. Weiter finden Sie hier eine exzellente Infrastruktur mit vielfältigen Freizeit- und Einkaufsmöglichkeiten, facettenreichen Kulturangeboten, ein großes Angebot an Schulen, Kitas und Kindergärten, sowie eine zentrale und sehr gute Verkehrsanbindung durch die Münchner Freiheit und dem nahegelegenen mittleren Ring.
Lageplan

Ansicht West

Ansicht Nord

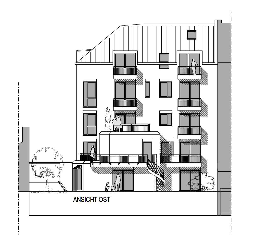
Ansicht Ost

Ansicht Süd

